Mobile Modular House for Germany, Finland, Sweden markets
House interior
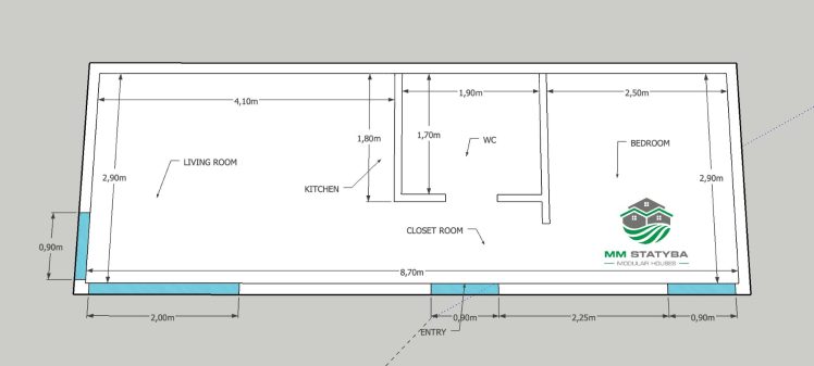
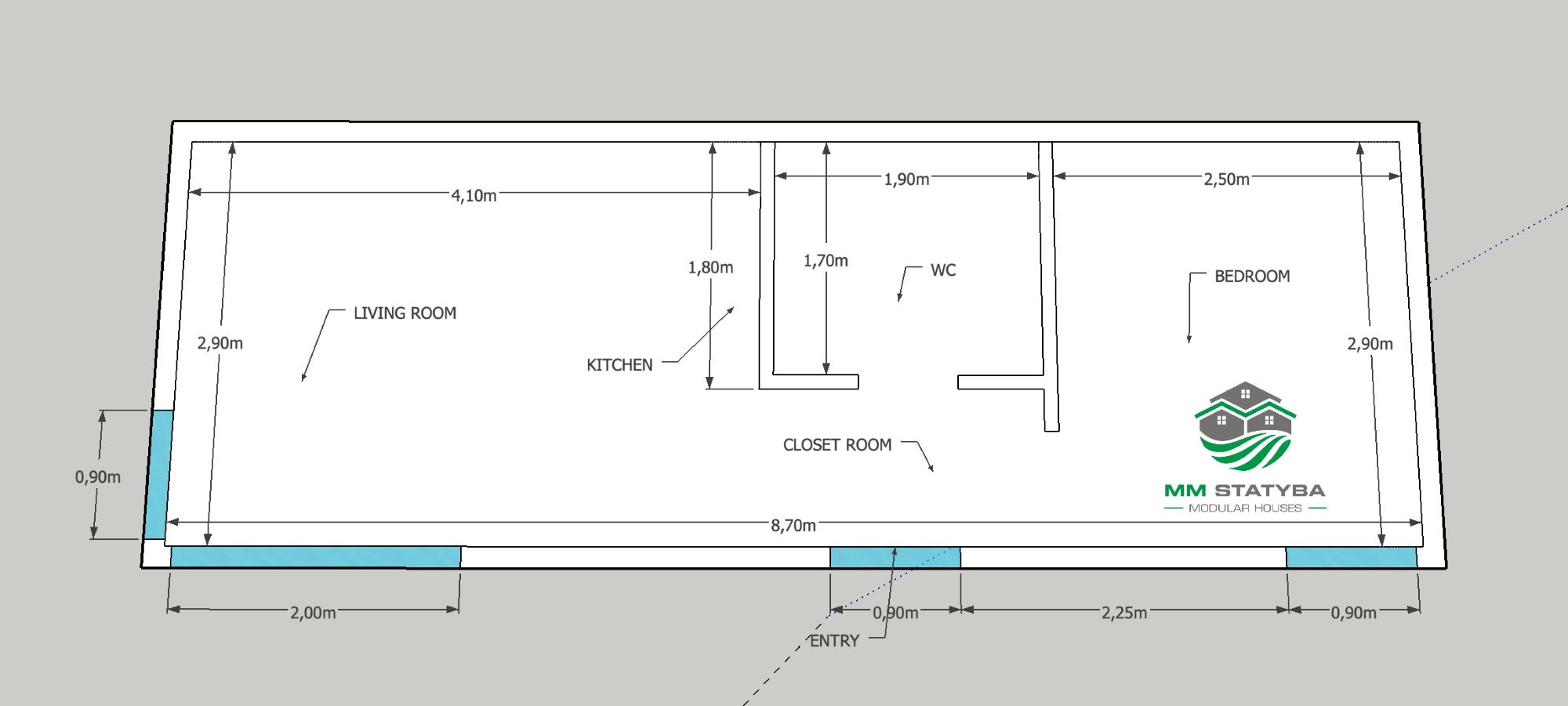
~ 25 sq.m Mobile Modular House with bedroom, bathroom, living room and kitchen
In this House our customers can find everything they need: bedroom, bathroom, living room and kitchen. This interior design is most loved between our customers. However house inside walls plan can be done according customers request.
Technical data
Mobile Modular House for Germany, Finland, Sweden markets
Looking for a modern and spacious living space? Our ~9.0m x 3.15 m x 3.10 m, approx. 25 sq. m inside mobile wooden frame house is the perfect solution, offering enough space to accommodate all your needs. With living room, kitchen, separate bedroom, bathroom this house has everything you need for comfortable living. Customize your living space to perfectly fit your lifestyle with our modular frame house solutions.
- Mobile house that does not require foundation. Poles are the perfect choice.
- Mobile modular house sold fully assembled.
- Featuring high-quality, winter season-suitable black-colored casement windows with a modern aluminum profile.
- Decorated in a modern style with thermal wood and black “Classic” tin.
- Double floor frame.
- Cement floor slab “Cetris”
- 15 cm insulated house frame, total wall thickness is about 20 cm.
- Insulation with mineral wool covered with special foil, that improves insulation even more.
- We offer direct delivery of our modular homes to your chosen location.
House standard is without internal finish.
Partial inside finish is possible for addition price, also windows, doors position changes possible as also exterior finish. All changes – adaptations according customer request possible, just contact us for more information with your request.
As we know how important is to communicate and see the products live at our construction site, so we invite YOU to have a memorable trip to Lithuania. We will ensure accommodation in a beautiful & exciting Kaunas city old town. And Yes, expenses covered by us!
If you are interested in our Houses, do not hesitate to contact us for more information and lets meet in Lithuania!
PRICE 15 300 EUR
Transportation cost:
– to Germany 2 500 EUR
– to Finland 2 500 EUR
– to Sweden 3 300 EUR
* All prices are without VAT (21%)
You can have a tour in our at the construction site in Kaunas, Lithuania and check our modular houses. Contact us for more details.
Additional solutions (optional)
- Moving windows, doors to different position
- Installing additional windows, increasing the number of window packages.
- Selection of insulation material.
